Etude électrique

Nos compétences pour étudier l’installation électrique de votre projet selon vos besoins

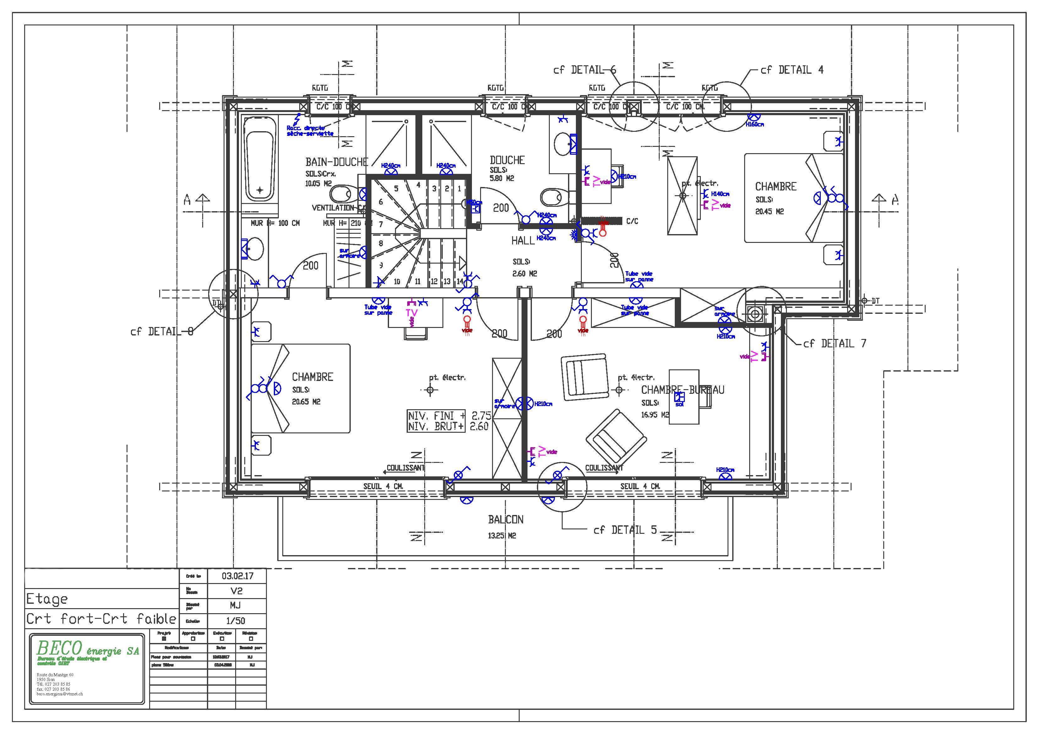
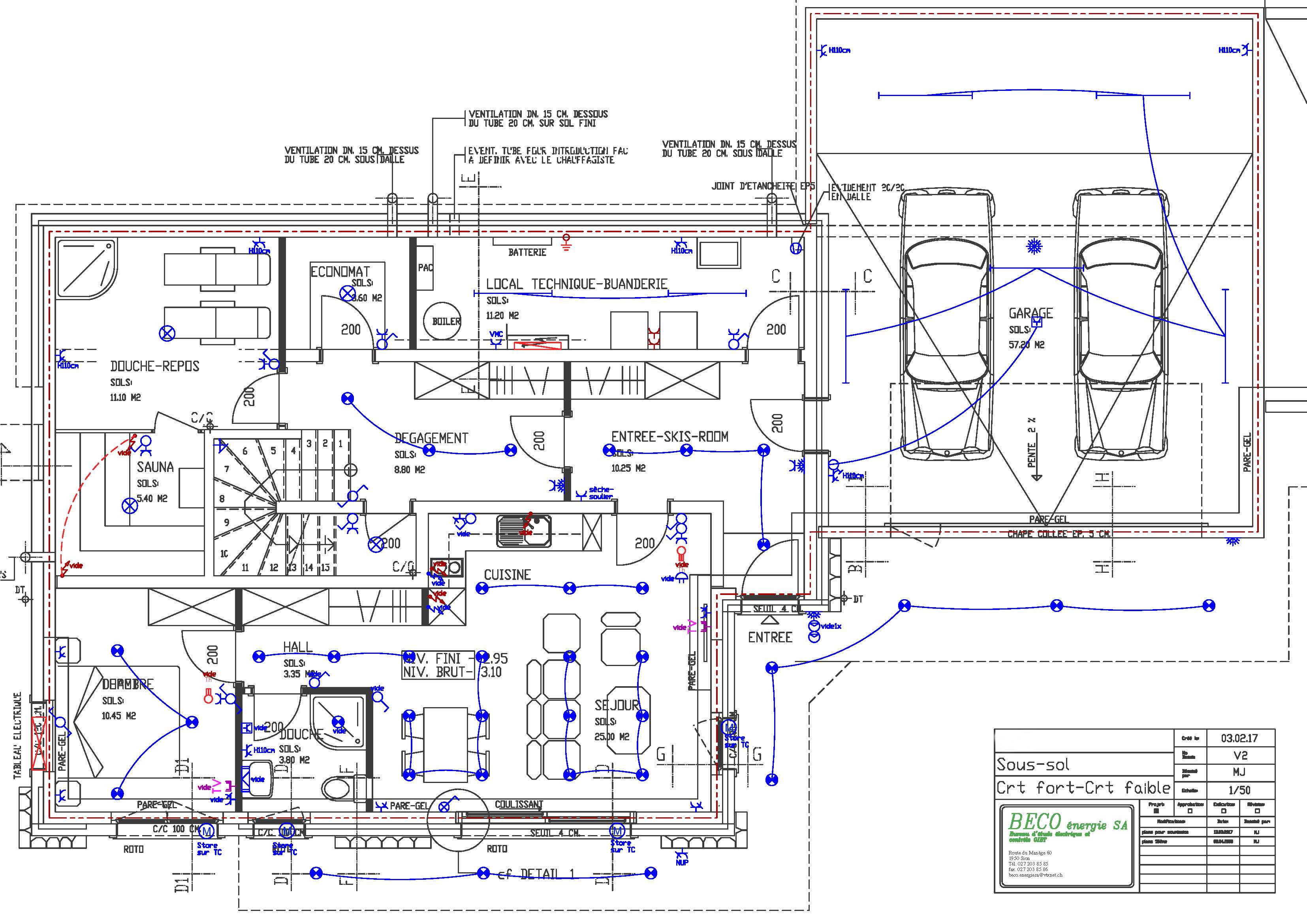
Notre bureau d'étude composé d'ingénieurs et de maître électricien vous propose les projets d’installations électriques pour le courant fort et le courant faible. Avec notre expérience, nous analysons vos besoins et attentes en vous proposant les dernières inonvations techniques tout en restant attentifs aux normes en vigueur et à votre budget.

Nos prestations


Etude & Conseils

Vous souhaitez réaliser un projet ? Nous vous conseillerons sur les possibilités offertes en fonction de vos besoins. N'hésitez pas à nous contacter pour en discuter.

Innovation & projets durables

Très proche de nos fournisseurs, nos projets vous proposent les dernières innovations techniques tout en respectant l'efficience énergétique de votre projet. Nous vous conseillerons sur les possibiltés offertes en fonction de l'étendue de votre projet

Domotique

Vous souhaitez rendre intellente toute ou une partie de votre habitation? Les produits pour les maisons intelligentes sont de plus en plus nombreux avec des prix accessibles et attractifs. Notre entreprise est certifiée KNX.

Eclairage

Nous vous proposons des projets d'éclairage originaux, alliant l'esthétisme et l'innovation, tout en respectant votre budget.

Pourquoi nous choisir

  • Devis gratuit

  • Plannification
  • Rapport et suivi d'intervention
© 2019 BSN Electro Sàrl. Tous droits réservés.